Обяви За нас Контакти
Дава под Наем ОФИС
град София, Хиподрума
2 000 €
3 911.66 лв.

(8.37 €, 16.37 лв./m2)
Цената е без ДДС
История на цената
Публикувана в 9:41 на 6 януари, 2026 год.
Обявата е посетена 62 пъти.
Площ:
239 m2
Етаж:
7-ми от 10
ТEЦ:
ДА

Описание на имота:


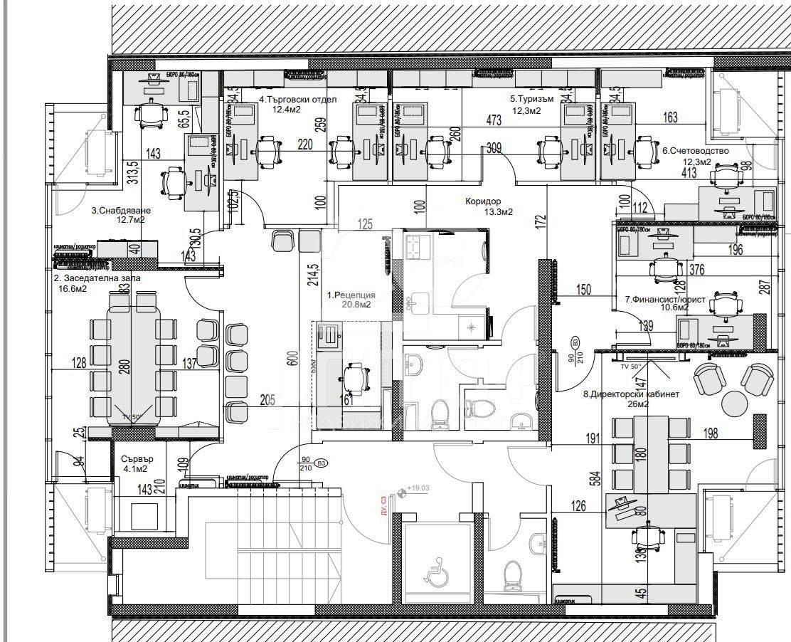
Primo+ недвижими имоти Ви представя един стилен и модерен офис с площ от 238.81 кв.м. / 184.58 кв.м./. с два самостоятелни входа, заемащ целия етаж.

Елбетица е високотехнологична сграда, носеща духа на съвременната, динамична столица. Проектирана, за да отговори на нуждите на различните бизнеси, тя е символ на просперитет, иновации и вдъхновение от следващо поколение. Сградата е разположена на един от най-важните транспортни възли в столицата и позволява бърз достъп до ключовите институции и централните части.

Централна локация:
Сградата разполага с отлични транспортни връзки: автобус,трамвай, метро.

Модерен дизайн:
Екстериор и интериор, отговарящи на световните стандарти в строителството на офис сгради.

Видеонаблюдение:
Система за видеонаблюдение подсигурява сигурността в общите части и по периферията на прилежащия район.

Функционален офис вход с рецепция, денонощна охрана, асансьор и др.

Достъпност:
Сградата е с осигурен достъп за хора с двигателни проблеми.

Свързаност:
Напълно осигурена високоскоростна оптична мрежа за пренос на данни.

Системи и инсталации: централна климатизация (отопление-охлаждане), която е индивидуална за всяка отделна част на офиса, структурно компютърно окабеляване, сървърно помещение, няколко интернет доставчици в сградата.

Паркинг: Предлагат се 3 паркоместа в подземния паркинг на сградата, всяко на цена 150 евро.

ВСИЧКИ ЦЕНИ СА БЕЗ ДДС.

Таксата поддръжка е 2,5 евро/кв.м. Наемните цени подлежат на договаряне след направен оглед.

Много може да се напише още за това предложение, но за да придобиете реална представа моля заповядайте на живо.

За повече информация и огледи: София Джалева, телефон за връзка: 0882 539 316
Особености
Обзаведен
С паркомясто
Асансьор
СОТ
Климатик
Окабеляване
Видео наблюдение
Контрол на достъпа
Охрана
За контакт:
0882539316
Брокер:
София Джалева
0882 53 93 16
Още оферти от брокера: Продава | Дава под наем | Купува | Наема
Агенция:
ПРИМО ПЛЮС
02/ 4 42 43 46, 0888 11 88 68
ПРИМО ПЛЮС logo
Медал за прослужено време
В imot.bg от 2009 г.
primoplus.imot.bg
Адрес:
област София, гр. София, р-н Възраждане, ул.Отец Паисий 15, ет.1
ИЗПРАТИ ЗАПИТВАНЕ
ИЗПРАТИ ЗАПИТВАНЕТО

Дава под Наем ОФИС
град София, Хиподрума
Обява: 2h176768529715213

2 000 €
3 911.66 лв.
История на цената
(8.37 €, 16.37 лв./m2)

Цената е без ДДС
ЗАПАЗИ ОБЯВАТА

Местоположение: град София, Хиподрума

Допълнителни данни за имотите в района и сравнение с други райони

Покажи

Период

и 1 месец

* Средните цени са определени чрез медианна стойност